
12
Mountain Refuge

7
Island Escape

14
Cielo Grande

6
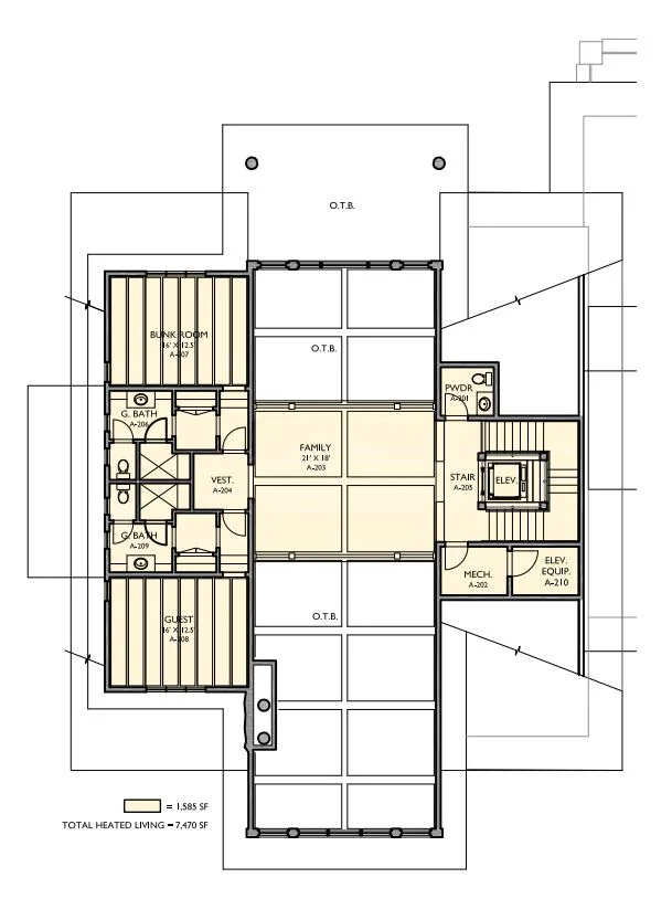
Naples Florida Penthouse

6
Montana Fishing Lodge

6
Stuart Florida Villa

6
Montana Ski Chalet

6
Naples Florida Beachside Guest House

9
Montana Mountain Hideaway

6
Florida Retreat

7
Wisconsin Lake House

14
Villa Vista

3
Bangalore Golf Club
12
Indian Vineyard

4
Diplomatic Retreat

8
Miami Night Club

7
New Community

4
Science Center
4
Premier FBO

3
CONNECTICUT POOL GARDEN

7
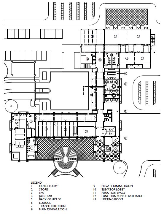
Hyatt Coconut Plantation Water Park and Clubhouse

4
Hyatt Coconut Plantation Residences

6
Hyatt Coconut Plantation Sales Center

4
Bha! Bha!

9
Beachfront Estate

15
Montana Retreat

8
Gulf Stream
8
Estero Cottage

10
Mountain Ski Chalet
